行業新聞
餐館油煙大經常被投訴?來改造后廚排煙系統吧
關鍵詞:環保,油煙,風機來源:發布時間:2017-10-31
餐館是使用明火的地方,因此對于后廚的安全要求很高。還有,餐館油煙比較大,為了環保一般都會要求安裝排煙和凈化設備。下面幾個后廚油煙設備系統工程設計方案,大家可以參考一下。
餐飲廚房設備排煙不通暢,排煙系統工程設計是關鍵。下面就幾種方案進行比較:
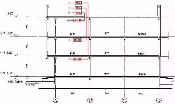
一對一油煙系統
每家餐飲用戶均獨立設置一套油煙系統,各個用戶之間不合用油煙風管、油煙風機、凈化器。油煙風機可設置于餐飲單元的廚房吊頂內,也可設置于屋面。

圖1 一對一油煙系統圖示(風機位于屋面)

圖2 一對一油煙系統圖示(風機位于廚房)
多對一分散風機油煙系統
多家餐飲用戶合用一套油煙系統,各個用戶之間合用油煙風管,但各個用戶均獨立設置油煙風機及油煙凈化器。油煙風機及油煙凈化器一般設置于餐飲單元的廚房吊頂內。

圖3 多對一分散風機油煙系統圖示
多對一集中風機油煙系統
多家餐飲用戶合用一套油煙系統,各個用戶之間合用油煙風管、油煙風機,各用戶不合用油煙凈化器(凈化器各戶獨立設置)。油煙風機一般設置于屋面。
油煙風機為各個用戶共用,只有一家或少數若干家餐飲單元需要排油煙時,油煙風機只能滿載運行,油煙風機不能按需運行,風機電耗浪費很大。風機電耗只能按照餐飲面積(或各餐飲用戶的油煙風量)來分攤,不能準確分攤各個用戶的用電量(因無法計量各用戶的開機時間),造成物業公司收費困難。
為了解決這一難題,可引入電量分攤系統,該系統可對各個用戶的油煙風量及運行時間進行計量,并準確計算出各個用戶的分攤電量,可解決物業收費難的問題。采用電量分攤系統時,油煙風機可根據實際需求的風量變頻運行,風機的電耗也大幅降低了。

圖4 多對一集中風機油煙系統圖示
各個油煙排放方式的特點對比及適用范圍
油煙排放口的位置
經過凈化處理后,油煙尾氣中仍然含有多種有害的物質,因此油煙尾氣必須伸頂在屋面高空排放,并注意遠離新風系統的入口(距離一般需≥20米)。油煙排放口與新風入口在同一高度時,還需注意風向的影響,需避免因刮風而將油煙尾氣吹向新風入口。
油煙排放口位于低空或裙房屋面,油煙排放口的上部有人員活動房間的窗戶時,油煙排放口需盡量遠離窗戶(距離一般需≥30米),以避免油煙污染客戶。
餐飲廚房設備通風問題
1、主排煙管道通風面積不夠,氣體流速過大。根據工程經驗,排煙主管道內風速不能超過15m/s。否則在運行一個時期以后(如一年以后)很容易造成排煙系統不通暢。在油煙凈化器的運行實踐中,大部分案例都是因排煙管道通風面積不足引起的不通暢,管道內氣體的流速都在15m/s以上。
2、排煙管道由于要穿過建筑梁而使管道通風截面積變小,截面上阻力增加,造成氣流不通暢。
3、排煙管道在穿過建筑梁或躲避其它設備管道時,排煙管道中的一段會低于整體排煙管道平面。在使用一段時間后,由于油水混合物會積聚在較低的那段排煙管道中,直接影響排煙通暢。
4、不同樓層的廚房油煙通過同一主管道排出,離出口近的樓層廚房排煙效果較好,而較低樓層的廚房排煙不通暢。

排煙系統工程的設計要點
1、局部排風部位及要求
中餐廚房:其烹調的發熱量和排煙量一般較大,排風量也較大,排氣罩一般選用抽油煙罩。為減輕油煙對環境的影響,可選用消洗煙罩。
蒸煮間:此間對新風的要求較低,但排風效果一定要好,否則,蒸汽將充滿整個工作間,影響廚師工作,排氣排出的主要是水蒸氣,可以不采用和凈化裝置,直接排出。

西餐廚房:烹調量并不很大,但要求設備多而全,排風量要小于中餐廚房。
洗碗間:需要較大的排風量。
2、廚房補風的要求
對于設置集中空調系統的建筑來說,廚房的工作環境能夠保證,其補風多為有序送風,靈活性也較大,在目前廚房的通風系統中,多為以下三種補風方式:
(1)餐廳空調為全新風直流式空調系統,空調新風首先送入餐廳,然后流入廚房經排風系統排出室外。此種方式投資較少,餐廳內采暖通風效果好。不足之處是大量空調風會被直接排出,新風能耗大,不利于節能。
(2)將組合式空調機組的新風一部分直接補入廚房,一部分送入餐廳,并通過回風機回到空調機。這樣可以部分解決新風能耗大的問題,同時使用的靈活性也較大。可在廚房設置測壓裝置,當廚房排風機全部工作時,負壓增大,則回風電動閥關閉,回風機停,餐廳送風大量補入廚房;當少部分排風機開啟或排風機不工作時,負壓不是很大,則回風電動閥打開,回風機啟動,避免空調送風全部被排出。
(3)用兩臺機組分別為餐廳、廚房服務,其中廚房為全新風直流系統,直接補充廚房爐灶的排風,而餐廳為一次回風全新空氣系統,這個方案能保證餐廳和廚房的空調效果,而且廚房和餐廳系統互不干擾,缺點是初投資較大。
3、系統布置
廚房排煙管道的水平段不宜太長,一般水平最遠距離不應超過15m并且要有2%以上的坡度,水平末端設活接頭,以方便清理油垢。排風速度按規范不得低于 10m/s,以防風速過低使油附著于煙道上,接排風罩的支管應設風量調節閥。
送風系統應為直流方式,廚房的通風系統宜采用變速風機或關聯又風機進行送排風。
送排風口布置廚房內送、排風口的布置應按灶具的具體位置加以考慮,不要讓送風射流擾亂灶具的排風性通。
確定送風出口的出口風速時,在距地2m左右時的區域風速<0.25m/s較為理想。送風口應沿排風罩方向布置,離開罩子前方最小0.7m,而排風口距排風罩越遠越好。每個炒菜廚房須有崗位送風。
機房、風機及風管的布置廚房的排風機宜設在廚房的上部,廚房為公共建筑中的一部分時,其排風機宜設在屋頂層,這可以使風道內處于負壓狀態,避免氣味外溢。
廚房的排風機一般應選用離心風機,廚房的排風管應盡量避免過長的水平風道。
廚房的排風管應盡量避免過長的水平風道。廚房的排風豎井最好與排煙道靠在一起以加大抽力。
4、防火、排煙
廚房的排氣系統宜按防火分區劃分,盡量不穿過防火墻,穿過時應裝防火閥。廚房通風系統的管道應采用不燃燒材料制成。。
來源:紅餐網(版權聲明:“德通”所推送文章,除非確實無法確認,否則都會注明作者來源,如有侵權,請聯系我們及時處理,如原創作者看到該文章,請留言,我們會及時刪除)


